Negozio in vendita

Ciampino, Via Mura dei Francesi
€ 480.000
1 locale 1 locale
600 Mq 600 Mq
1 bagno 1 bagno

Negozio in vendita

Ciampino, Via Mura dei Francesi

Descrizione annuncio

CIAMPINO - Via Mura dei Francesi, 162/F -

Uso investimento: locato al 'Mercatino dell'Usato' da Maggio 2009 al canone mensile di Euro 4.000,00 - Rendita 10%

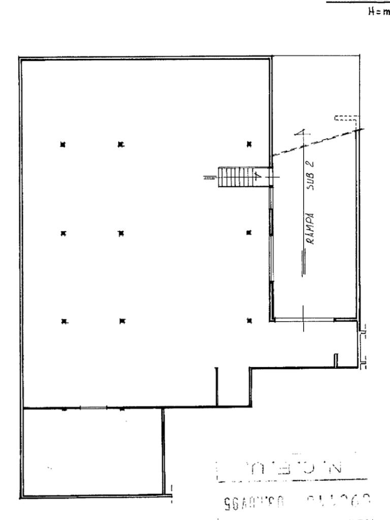
Il locale commerciale che ospita l'attività è di 110 mq ed è posto al piano seminterrato

Attualmente composto da quattro ambienti con antibagno e bagno - annesso magazzino di 490 mq composto da due ambienti e provvisto dell'impianto di aerazione forzata

Unico ingresso da rampa esclusiva

La vendita è da intendersi oltre Iva

Locato dal 2009 ad euro 4.000,00/mese

RENDITA: 10%

Mostra tutto

Nelle vicinanze

Trasporto pubblico Trasporto pubblico
Acqua Acetosa
Acqua Acetosa
650 m
Casabianca
Casabianca
940 m
Ciampino - Stazione FS/Viale Rizzo
Ciampino - Stazione FS/Viale Rizzo
1,2 Km
Kennedy/Stazione FS Ciampino
Kennedy/Stazione FS Ciampino
1,2 Km
Ricariche auto elettriche Ricariche auto elettriche
CM Motors | EnelX
1,0 Km
CONCESSIONARIO NISSAN Mirauto
1,6 Km
Mirauto Nissan
1,6 Km
Scuole Scuole
Scuola Media Statale Umberto Nobile
420 m
Scuole
720 m
Istituto Maria Immacolata
780 m
Direzione Didattica "il Circolo" Scuola Elementare
970 m
Scuola Statale Primaria e dell'Infanzia Paola Sarro
1,3 Km
Farmacia Farmacia
Farmacia
550 m
Farmacia Peretti e Santori
1,2 Km
Farmacia
1,2 Km
Farmacia comunale 2
1,3 Km
Farmacia Morena Del Dott. Scarno' S.A.S.
2,1 Km
Supermercati Supermercati
Emme Più
120 m
Despar
440 m
Supermercati
610 m
Iper Dem Ciampino
1,0 Km
Tigre
1,1 Km
Negozi Negozi
Moda donna
1,2 Km
MINIMARKET
1,2 Km
Blog
1,2 Km
Cose di casa
1,2 Km
FREE SHOP
1,2 Km
Bar Bar
Bar
530 m
BUDDHA BAR
1,2 Km
Chef Express
1,6 Km
Murolo
1,7 Km
ORION
1,8 Km
Ristoranti Ristoranti
Il Molisano
540 m
Il limoncello
560 m
Roby dal 1990
1,1 Km
Re Artù
1,2 Km
Zen Garden
1,3 Km
Mostra tutto

Caratteristiche

Rif.:
60737706
Piano:
Seminterrato di 1
Totale piani:
1
Condizionamento:
Autonomo
Ascensore:
No
Riscaldamento:
Autonomo
Mostra tutto
Prezzo Prezzo
€ 480.000
Rata mutuo Rata mutuo
€ 2.266 / mese
Proponi il tuo prezzoProponi il tuo prezzo

Altre caratteristiche

Descrizione dei locali
Bagno antibagno

Classe Energetica

G
G
G
G
G
G
G
G
G
EP globale non rinnovabile:
175.00 kW h/m² anno
EP globale rinnovabile:
175.00 kW h/m² anno
EP invernale del fabbricato:
EP estiva del fabbricato:
Anno di costruzione:
1990
Riscaldamento:
Autonomo
Tipo impianto:
Ad aria
Tipo alimentazione:
Aria

Ti interessa visionare l'immobile?

Fissa un appuntamento  Fissa un appuntamento

Richiedi informazioni

Clicca su Leggi per aprire l'informativa
* Questi campi sono obbligatori

Calcola il tuo mutuo

Semplice e senza impegno
Anticipo

( % )
Mutuo

( % )

pochi semplici passi

inserisci i tuoi dati
Questionario completato
Grazie per aver richiesto un appuntamento senza impegno con un nostro Consulente del Credito e Assicurativo.

Hai inserito correttamente tutti i dati necessari e a breve riceverai una e-mail con un link da convalidare per inviare i tuoi dati.
Affiliato
Mediazioni Commerciali Morena Srl
Via Stazione di Ciampino, 14/C 00118 Roma (RM)

Il nostro staff


  • Gioia Iacoangeli
    Coordinatrice

  • Federica Folco
    Coordinatrice

  • Veronica Spagnoli
    Coordinatrice

  • Daniele Viselli
    Affiliato
Via Stazione di Ciampino, 14/C 00118 Roma (RM)
Zona: Castelli Romani-G.R.A.-Appia-Tuscolana-Anagnina-Tor Vergata
Mostra su mappa
Orari: dal lunedì al venerdì: h 9.00/19.30 - sabato: h 9.00/13.00
Affiliato
Mediazioni Commerciali Morena Srl
Via Stazione di Ciampino, 14/C 00118 Roma (RM)

2025 Tecnocasa Franchising S.p.A. - P. IVA 08365160152 - Via Monte Bianco 60/A 20089 Rozzano (MI). Ogni agenzia ha un proprio titolare ed è autonoma. Privacy policy | Policy utilizzo | Cookie policy