Capannone in vendita

Roma, V. di Tor Vergata - Tor Vergata Nuova
€ 540.000
450 Mq 450 Mq
2 bagni 2 bagni

Capannone in vendita

Roma, V. di Tor Vergata - Tor Vergata Nuova

Descrizione annuncio

USO INVESTIMENTO

TOR VERGATA, ADIACENTE ALL'AUTOSTRADA E AL RACCORDO

PROPONIAMO IN VENDITA

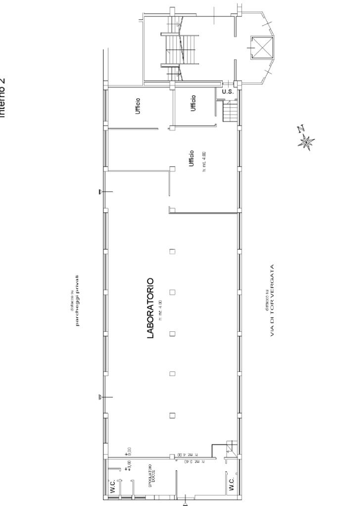
UN CAPANNONE COMMERCIALE AD USO MAGAZZINO CON UN PORTONE DI CARICO SCARICO E UN ACCESSO PEDONALE.

AMPIO PIAZZALE CHE RENDE COMODA LA MANOVRA AI MEZZI PESANTI.

E' COMPOSTO DA UN UNICO AMBIENTE CON SERVIZIO IGIENICO, FINESTRATO SU DUE LATI.

LOCATO DAL 2020 AD EURO 2.769,12 OLTRE IVA AL MESE

SCADENZA CONTRATTUALE A DICEMBRE 2026

RENDITA PARI AL 6.15%

Tecnocasa affiliato MCM Srl
Via della stazione di Ciampino, 14/c 00118 (Roma)
06/79846807Whatsapp: 3518612154Email:
Sito web: roma1
Facebook:
Instagram: @morenatecnocasa
orari apertura ufficio 9:00/19:30 sabato 09:00/13:00

Mostra tutto

Nelle vicinanze

Trasporto pubblico Trasporto pubblico
Anagnina
Anagnina
3,0 Km
Tor Vergata/La Barcaccia
Tor Vergata/La Barcaccia
90 m
Tor Vergata/Volpe
Tor Vergata/Volpe
360 m
Ricariche auto elettriche Ricariche auto elettriche
Roma Raf Vallone 12 | EnelX
1,9 Km
EnelX EVAD IKEA Anagnina
2,1 Km
IKEA Roma Anagnina
2,3 Km
Roma CC Anagnina | EnelX fast
2,3 Km
Roma Alimena | EnelX
2,4 Km
Scuole Scuole
Scuole
710 m
Nel Mondo di Nemo
1,2 Km
Istituto Comprensivo Gianni Rodari
1,6 Km
Scuola dell'infanzia "Antoni Gaudí"
1,7 Km
Edificio B - Ricerca
1,9 Km
Farmacia Farmacia
Farmacia Mastrogiovanni Maria
1,0 Km
Farmacia
1,2 Km
Dottoressa Silvia Gallo
1,6 Km
Farmacia Romanina
1,6 Km
Farmacap Gasperina
1,7 Km
Ospedali Ospedali
Centro Regionale del Lazio per i Trapianti e le patologie collegate
2,4 Km
Policlinico Tor Vergata
2,7 Km
Pronto Soccorso Policlinico Tor Vergata
2,7 Km
Supermercati Supermercati
EuroSpin
330 m
PAM
730 m
Iper Pewex
890 m
Carrefour Market
1,0 Km
UniGross
1,6 Km
Negozi Negozi
Il Fornaio di Tor Vergata
380 m
Pasticceria Pirri
530 m
Combipel
840 m
XMarket
1,4 Km
Clover
1,4 Km
Bar Bar
Malecón Roma
1,4 Km
Wood Roma
1,4 Km
Barrio Latino
2,4 Km
Replatz sport bar since 1960
2,8 Km
Bar
2,9 Km
Ristoranti Ristoranti
Rosso pachino
550 m
Il cavalluccio marino
600 m
Pizza Light
710 m
Ristorante L'ostrica
770 m
Fuoco e Fiamme
1,0 Km
Mostra tutto

Caratteristiche

Rif.:
61122980
Totale piani:
2
Condizionamento:
Autonomo
Ascensore:
No
Riscaldamento:
Autonomo
Giardino:
Privato e Condominiale
Mostra tutto
Prezzo Prezzo
€ 540.000
Rata mutuo Rata mutuo
€ 2.549 / mese
Spese annue Spese annue
€ 0
Proponi il tuo prezzoProponi il tuo prezzo

Altre caratteristiche

Descrizione dei locali
Bagno Con Finestra

Classe Energetica

G
G
G
G
G
G
G
G
G
Anno di costruzione:
1990
Riscaldamento:
Autonomo
Tipo impianto:
Ad aria
Tipo alimentazione:
Aria

Ti interessa visionare l'immobile?

Fissa un appuntamento  Fissa un appuntamento

Richiedi informazioni

Clicca su Leggi per aprire l'informativa
* Questi campi sono obbligatori

Calcola il tuo mutuo

Semplice e senza impegno
Anticipo

( % )
Mutuo

( % )

pochi semplici passi

inserisci i tuoi dati
Questionario completato
Grazie per aver richiesto un appuntamento senza impegno con un nostro Consulente del Credito e Assicurativo.

Hai inserito correttamente tutti i dati necessari e a breve riceverai una e-mail con un link da convalidare per inviare i tuoi dati.
Affiliato
Mediazioni Commerciali Morena Srl
Via Stazione di Ciampino, 14/C 00118 Roma (RM)

Il nostro staff


  • Gioia Iacoangeli
    Coordinatrice

  • Federica Folco
    Coordinatrice

  • Veronica Spagnoli
    Coordinatrice

  • Daniele Viselli
    Affiliato
Via Stazione di Ciampino, 14/C 00118 Roma (RM)
Zona: Castelli Romani-G.R.A.-Appia-Tuscolana-Anagnina-Tor Vergata
Mostra su mappa
Orari: dal lunedì al venerdì: h 9.00/19.30 - sabato: h 9.00/13.00
Affiliato
Mediazioni Commerciali Morena Srl
Via Stazione di Ciampino, 14/C 00118 Roma (RM)

2025 Tecnocasa Franchising S.p.A. - P. IVA 08365160152 - Via Monte Bianco 60/A 20089 Rozzano (MI). Ogni agenzia ha un proprio titolare ed è autonoma. Privacy policy | Policy utilizzo | Cookie policy