Negozio in vendita

Roma, Via della Stazione di Ciampino - Morena
€ 135.000
2 locali 2 locali
90 Mq 90 Mq
1 bagno 1 bagno

Negozio in vendita

Roma, Via della Stazione di Ciampino - Morena

Descrizione annuncio

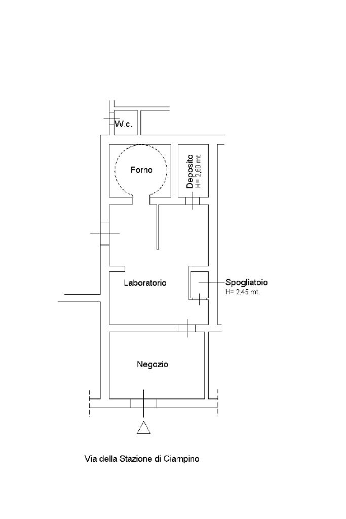
MORENA - VIA DELLA STAZIONE DI CIAMPINO 2B

PROPONIAMO IN VENDITA

LOCALE COMMERCIALE AD USO INVESTIMENTO COMPOSTO DA DUE AMBIENTI:

ZONA PRINCIPALE ADIBITA A NEGOZIO CON VENDITA AL PUBBLICO

ZONA RETROSTANTE ADIBITA A LABORATORIO CON ANNESSO SERVIZIO IGIENICO E SPOGLIATOIO

UNICO INGRESSO DA VETRINA FRONTE STRADA

PRESENZA DI CANNA FUMARIA

ATTUALMENTE LOCATO AD 'ATTIVITA' DI PANE PIZZA DOLCI E RINFRESCHI' AL CANONE ANNUO DI EURO 12.000,00

CONTRATTO IN CORSO DA SETTEMBRE 2022

RENDITA PARI AL 8,88%

CONDIZIONATO E CABLATO PER FONIA E DATI

MCM Srl affiliato Tecnocasa
Via della stazione di Ciampino, 14/c 00118 (Roma)
Numero fisso: 0679846807
Whatsapp: 3518612154
E-mail:
Orari apertura ufficio 9:00/19:30 sabato 09:00/13:00

Mostra tutto

Nelle vicinanze

Trasporto pubblico Trasporto pubblico
Ciampino
Ciampino
2,0 Km
Acqua Acetosa
Acqua Acetosa
2,4 Km
V. Anagnina / V. Stz Ciampino
V. Anagnina / V. Stz Ciampino
30 m
V. Anagnina / V. Casale Santarelli
V. Anagnina / V. Casale Santarelli
90 m
Ricariche auto elettriche Ricariche auto elettriche
CM Motors | EnelX
2,1 Km
Roma Raf Vallone 12 | EnelX
2,7 Km
EnelX EVAD IKEA Anagnina
2,9 Km
Scuole Scuole
Scuola Materna Maria Bambina
130 m
Istituto Comprensivo Gianni Rodari
700 m
Scuola 'Monsignor Francesco Saverio Petagnà
980 m
Scuola Media Anna Magnani
1,3 Km
Direzione Didattica "il Circolo" Scuola Elementare
1,3 Km
Farmacia Farmacia
Farmacia Morena Del Dott. Scarno' S.A.S.
230 m
Dottoressa Silvia Gallo
1,0 Km
Farmacia
1,2 Km
Farmacia Riccioni
1,4 Km
Farmacia comunale 2
1,9 Km
Supermercati Supermercati
Carrefour Market - Supermercato
140 m
Eurospin
320 m
Punto Simply
650 m
Simply Market
870 m
Conad
1,1 Km
Negozi Negozi
Forno Nonna Iole
420 m
Fashion Market
900 m
Antiche tradizioni
900 m
Dolce e Salato
970 m
Beauty Shoes
1,0 Km
Bar Bar
Murolo
1,2 Km
ORION
1,7 Km
BUDDHA BAR
2,1 Km
Bar
2,2 Km
Malecón Roma
2,6 Km
Ristoranti Ristoranti
Antica Fontana Express
170 m
Il Fornaccio 2
400 m
Ristorante Orientale Wok - Okura
540 m
Pizza Service 2
540 m
Mr. Mad
740 m
Mostra tutto

Caratteristiche

Rif.:
61167972
Piano:
Terra
Condizionamento:
Autonomo
Ascensore:
No
Riscaldamento:
Autonomo
Libero:
No
Mostra tutto
Prezzo Prezzo
€ 135.000
Rata mutuo Rata mutuo
€ 636 / mese
Spese annue Spese annue
€ 0
Proponi il tuo prezzoProponi il tuo prezzo

Altre caratteristiche

Descrizione dei locali
Bagno Cieco

Classe Energetica

G
G
G
G
G
G
G
G
G
Anno di costruzione:
1980
Riscaldamento:
Autonomo
Tipo impianto:
Ad aria
Tipo alimentazione:
Aria

Ti interessa visionare l'immobile?

Fissa un appuntamento  Fissa un appuntamento

Richiedi informazioni

Clicca su Leggi per aprire l'informativa
* Questi campi sono obbligatori

Calcola il tuo mutuo

Semplice e senza impegno
Anticipo

( % )
Mutuo

( % )

pochi semplici passi

inserisci i tuoi dati
Questionario completato
Grazie per aver richiesto un appuntamento senza impegno con un nostro Consulente del Credito e Assicurativo.

Hai inserito correttamente tutti i dati necessari e a breve riceverai una e-mail con un link da convalidare per inviare i tuoi dati.
Affiliato
Mediazioni Commerciali Morena Srl
Via Stazione di Ciampino, 14/C 00118 Roma (RM)

Il nostro staff


  • Gioia Iacoangeli
    Coordinatrice

  • Federica Folco
    Coordinatrice

  • Veronica Spagnoli
    Coordinatrice

  • Daniele Viselli
    Affiliato
Via Stazione di Ciampino, 14/C 00118 Roma (RM)
Zona: Castelli Romani-G.R.A.-Appia-Tuscolana-Anagnina-Tor Vergata
Mostra su mappa
Orari: dal lunedì al venerdì: h 9.00/19.30 - sabato: h 9.00/13.00
Affiliato
Mediazioni Commerciali Morena Srl
Via Stazione di Ciampino, 14/C 00118 Roma (RM)

2026 Tecnocasa Franchising S.p.A. - P. IVA 08365160152 - Via Monte Bianco 60/A 20089 Rozzano (MI). Ogni agenzia ha un proprio titolare ed è autonoma. Privacy policy | Policy utilizzo | Cookie policy