Ufficio in affitto

Velletri, Via Appia Sud
€ 5.500 / mese
360 Mq 360 Mq
5 bagni 5 bagni

Ufficio in affitto

Velletri, Via Appia Sud

Descrizione annuncio

VELLETRI - VIA APPIA SUD 223

COMPENDIO IMMOBILIARE DI 1.160 MQ COMPOSTO DA DUE CORPI DI FABBRICA CON PIAZZALE PERIMETRALE DI 4.300 MQ.

ZONA PRODUZIONE COPERTA OPEN SPACE DI 750 MQ CON ALTEZZA MEDIA DI SEI METRI, COMPLETA DI UFFICIO, SPOGLIATOIO E SERVIZI IGIENICI.

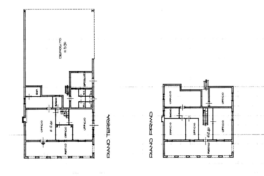
ZONA UFFICIO DI 360 MQ DISPOSTO SU DUE LIVELLI COLLEGATI DA UNA SCALA INTERNA:

PIANO TERRA COMPOSTO DA RECEPTION, TRE VANI, SERVIZIO IGIENICO, RIPOSTIGLIO E PORTICO;

PIANO PRIMO COMPOSTO DA QUATTRO VANI, SERVIZIO IGIENICO E BALCONE.

LOCALE ACCESSORIO INDIPENDENTE DI 50MQ.

COMPLETANO LA PROPRIETA' UN POZZO ARTESIANO, UN IMPIANTO ANTINCENDIO COMPLETO DI GRUPPI DI POMPAGGIO, DA LOCALI TECNICI E RISERVE IDRICHE.

COMPENDIO ALLACCIATO IN FOGNA CON SISTEMA DI DEPURAZIONE.

Tecnocasa affiliato MCM Srl
Via della stazione di Ciampino, 14/c 00118 (Roma)
06/79846807Whatsapp: 3518612154Email:
Sito web: roma1
Facebook:
Instagram: @morenatecnocasa
orari apertura ufficio 9:00/19:30 sabato 09:00/13:00

Mostra tutto

Nelle vicinanze

Scuole Scuole
Scuola dell'Infanzia e Primaria "Martiri di Pratolungo"
1,2 Km
Scuola dell'Infanzia e Primaria "Mercatora II"
1,5 Km
Scuola dell'Infanzia "Sole e Luna"
2,5 Km
Scuola Primaria "Colle Perino"
2,7 Km
Supermercati Supermercati
EuroSpin
2,8 Km
Negozi Negozi
Genesi Srl
1,0 Km
Ristoranti Ristoranti
Agriturismo l'Ulivarella
1,2 Km
Oasi
1,8 Km
Trattoria Duilio
3,0 Km
Mostra tutto

Caratteristiche

Rif.:
61126446
Piano:
2 (Piano su più livelli)
Condizionamento:
Autonomo
Ascensore:
No
Riscaldamento:
Autonomo
Giardino:
Privato
Mostra tutto
Prezzo Prezzo
€ 5.500 / mese
Spese annue Spese annue
€ 0

Altre caratteristiche

Descrizione dei locali
Bagno Cieco

Classe Energetica

G
G
G
G
G
G
G
G
G
Anno di costruzione:
1986
Riscaldamento:
Autonomo
Tipo impianto:
Ad aria
Tipo alimentazione:
Aria

Ti interessa visionare l'immobile?

Fissa un appuntamento  Fissa un appuntamento

Richiedi informazioni

Clicca su Leggi per aprire l'informativa
* Questi campi sono obbligatori
Affiliato
Mediazioni Commerciali Morena Srl
Via Stazione di Ciampino, 14/C 00118 Roma (RM)

Il nostro staff


  • Gioia Iacoangeli
    Coordinatrice

  • Federica Folco
    Coordinatrice

  • Veronica Spagnoli
    Coordinatrice

  • Daniele Viselli
    Affiliato
Via Stazione di Ciampino, 14/C 00118 Roma (RM)
Zona: Castelli Romani-G.R.A.-Appia-Tuscolana-Anagnina-Tor Vergata
Mostra su mappa
Orari: dal lunedì al venerdì: h 9.00/19.30 - sabato: h 9.00/13.00
Affiliato
Mediazioni Commerciali Morena Srl
Via Stazione di Ciampino, 14/C 00118 Roma (RM)

2026 Tecnocasa Franchising S.p.A. - P. IVA 08365160152 - Via Monte Bianco 60/A 20089 Rozzano (MI). Ogni agenzia ha un proprio titolare ed è autonoma. Privacy policy | Policy utilizzo | Cookie policy